177 Farmers Hill RoadLiberty, SC 29657
Due to the health concerns created by Coronavirus we are offering personal 1-1 online video walkthough tours where possible.




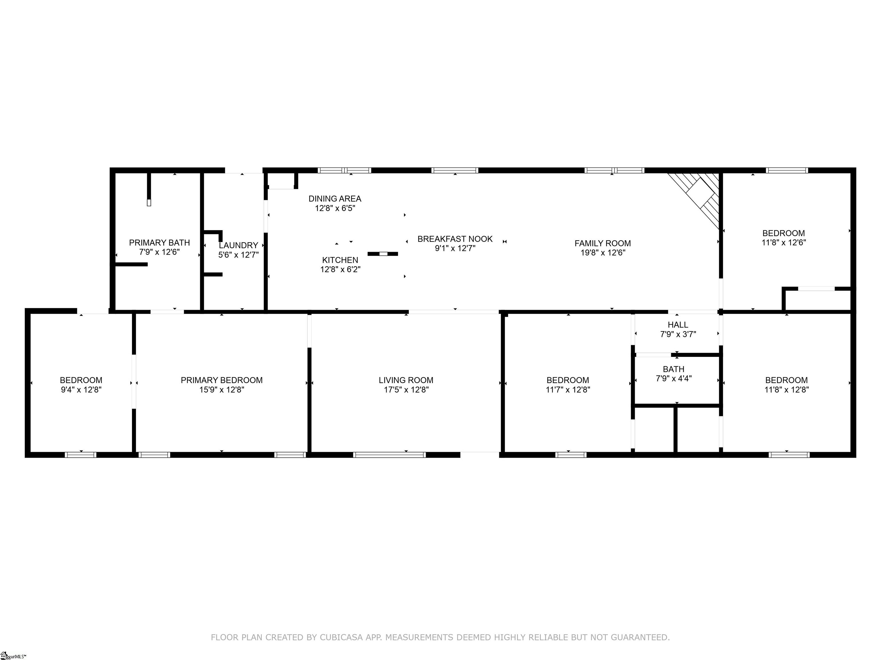
Welcome to peaceful living in the charming town of Liberty. Sitting on 1.1 acres this spacious de-titled manufactured home was built in 2000 and provides 2,002 sq ft living space with an open floor plan that includes both a living room and a cozy den highlighted by a warm gas-log fireplace. The home features 4 bedrooms and 2 baths with generously sized bedrooms throughout. The primary suite includes an adjoining room--ideal for study, nursery, or hobby area-along with a large walk-in closet. Three additional bedrooms provide plenty of space for family or guests. A walk-in laundry and pantry area adds extra storage and everyday convenience. Enjoy the peaceful surroundings from the large covered front porch, perfect for relaxing, reading your favorite book, or sipping your morning coffee. Incredible Convenience: Minutes from Liberty Hight School; located 2 minutes from Hwy 123 and 5 minutes to US-178 and downtown Liberty; Downtown Easley is 15 minutes away and less than 30 minutes to Downtown Greenville; Clemson is 11 miles away, along with Southern Wesleyan, and Tri-County Tech.; about 25 minutes to I-85; centrally located between Atlanta, GA and Charlotte, NC, making it ideal for both quiet living and easy travel access. Property is 45 minutes to Greenville Airport and 10 minutes to Pickens County Airport. An Industrial Commerce Park is under construction only a few minutes away between Hwy 123 and State Road 27 (Ruhamah Road). For outdoor lovers, this location puts you close to Lake Hartwell and Lake Keowee and the hiking trails of the Blue Ridge Mountains and Table Rock State Park. This is country living at its best with endless potential. Property may be eligible for USDA.
| 5 days ago | Listing updated with changes from the MLS® | |
| 4 weeks ago | Status changed to Active | |
| 4 weeks ago | Listing first seen on site |
Listing information is provided by Participants of the Greater Greenville Association of Realtors. IDX information is provided exclusively for personal, non-commercial use, and may not be used for any purpose other than to identify prospective properties consumers may be interested in purchasing. Information is deemed reliable but not guaranteed. Copyright 2026, Greater Greenville Association of Realtors.
Last checked: 2026-03-10 09:00 AM UTC


Did you know? You can invite friends and family to your search. They can join your search, rate and discuss listings with you.