1446 Cattleman Acres DriveInman, SC 29349
Due to the health concerns created by Coronavirus we are offering personal 1-1 online video walkthough tours where possible.




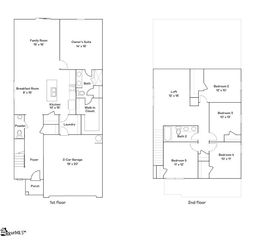
The Frost floorplan at The Maple in Inman, SC, is the perfect home for a growing family. With 5 bedrooms and 3 bathrooms, this spacious two-story design provides room for everyone to thrive. The first floor boasts an open layout, with the family room, kitchen, and breakfast area flowing together to create a warm, inviting space for daily living and entertaining. A secluded secondary bedroom is perfect for guests, along with a convenient two-car garage. Upstairs, a versatile flex room offers extra living space, while four bedrooms, including a large owner’s suite, provide comfort and privacy. The Frost floorplan combines style, function, and space for the entire family to enjoy. It's the ideal home for making lasting memories with your loved ones. It's ideal for families seeking a peaceful neighborhood with convenient connections to Greenville and Spartanburg.
| 8 hours ago | Listing updated with changes from the MLS® | |
| yesterday | Listing first seen on site |
Listing information is provided by Participants of the Greater Greenville Association of Realtors. IDX information is provided exclusively for personal, non-commercial use, and may not be used for any purpose other than to identify prospective properties consumers may be interested in purchasing. Information is deemed reliable but not guaranteed. Copyright 2026, Greater Greenville Association of Realtors.
Last checked: 2026-01-28 02:48 AM UTC


Did you know? You can invite friends and family to your search. They can join your search, rate and discuss listings with you.