122 Selton PlaceTaylors, SC 29687
Due to the health concerns created by Coronavirus we are offering personal 1-1 online video walkthough tours where possible.




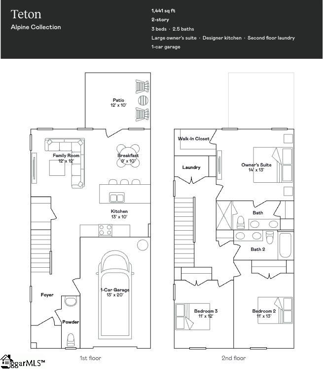
The Teton floorplan at Freeman Park in Taylors, SC offers a modern, low-maintenance lifestyle in a thoughtfully designed two-story townhome. The open-concept main floor seamlessly connects the kitchen, family room, and breakfast nook, with a patio that extends the living space outdoors—perfect for enjoying South Carolina’s mild climate. Upstairs, all three bedrooms provide privacy and comfort, including an owner's suite with en-suite bath and a shared full bath with dual sinks for added convenience. A one-car garage adds secure parking and storage. Located just minutes from Greenville, Freeman Park combines suburban tranquility with easy access to local amenities, making it ideal for a range of lifestyles.
| yesterday | Listing updated with changes from the MLS® | |
| yesterday | Listing first seen on site |
Listing information is provided by Participants of the Greater Greenville Association of Realtors. IDX information is provided exclusively for personal, non-commercial use, and may not be used for any purpose other than to identify prospective properties consumers may be interested in purchasing. Information is deemed reliable but not guaranteed. Copyright 2025, Greater Greenville Association of Realtors.
Last checked: 2025-12-06 04:18 AM UTC


Did you know? You can invite friends and family to your search. They can join your search, rate and discuss listings with you.